- Back
- Home Search
- 2713 Mackinac Bay Drive Texas City 77568
2713 Mackinac Bay Drive Texas City 77568
Lago MarMLS: #12610546
6 months, 23 days, 17 hours, 17 minutes on market
3
Beds2
Baths2200
Sq. Ft.
YOU MIGHT ALSO LIKE THESE LISTINGS:
Property Details
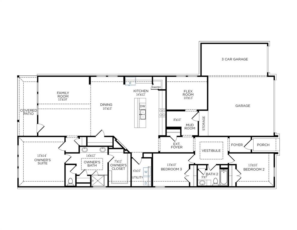
Introducing a stunning masterpiece by Tricoast Homes, this floor plan embodies modern elegance in the vibrant Lago Mar community. Step inside and be immersed in a thoughtfully curated open-concept floor plan that exudes sophistication. This seamless flow leads you into an updated kitchen, where exquisite countertops and stainless-steel appliances come together to create a designer-inspired culinary haven. Retreat to the primary bathroom, a sanctuary of luxury featuring contemporary finishes that elevate your everyday experience. Step outside to your private oasis on the covered patio, perfect for relaxation or entertaining guests. Each Tricoast home is a celebration of space and light, boasting high ceilings in the living room and an abundance of windows that invite the outside in. With smart home features like a video doorbell and the sophistication of Luxury Vinyl Plank flooring throughout all common areas, this is more than just a home; it’s a lifestyle waiting to be embraced!
Courtesy of Southern Star Realty
This real estate information comes in part from the Internet Data Exchange/Broker Reciprocity Program. Information is deemed reliable but is not guaranteed.
© 2025 Houston Association of Realtors. All rights reserved.



